WolfKit 79 Mansardable – Kit casă cu etaj mansardat
de la 18.736 € fără TVA
Kit casă cu structură pregătită pentru mansardă
Specificații
Detalii tehnice și caracteristici ale modelului WolfKit 79 Mansardable
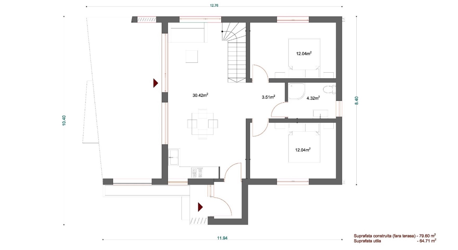
Suprafață construită
79,6 m²
Suprafață locuibilă
65 m²
Terasă
27 m²
2 Dormitoare
1 Baie
1 Living
Descriere
WolfKit 79 Mansardable este varianta premium a modelului 79, cu structura deja pregătită pentru amenajarea mansardei. Include toate componentele necesare pentru construcția completă.
Imaginile sunt cu titlu de prezentare și nu au valoare contractuală.
Galerie
Imagini și randări ale modelului WolfKit 79 Mansardable
Alte kituri de case SIP
Explorează și alte kituri de case din gama noastră
WolfKit 56
Kit casă modulară compactă, ideală pentru o persoană sau cuplu
de la 12.280 € fără TVA
56,8 m² suprafață construită
1 dormitor
WolfKit EVO
Kit casă disponibil în două variante: 39 m² sau 54 m²
de la 15.482 € fără TVA
53,7 m² suprafață construită
1-2 dormitore
WolfKit 79
Kit casă cu mansardă amenajabilă ulterior de aproximativ 30 m²
de la 16.888 € fără TVA
79,6 m² suprafață construită
2 dormitore